Informații
- ID 11641
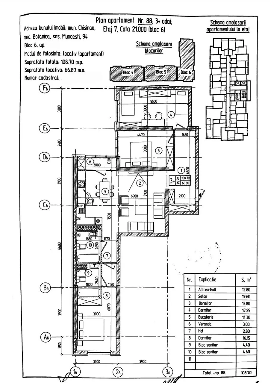
- Suprafață totală, m2 109
- Nivelul 7
- Număr de nivele 18
- Balcon 1 balcon
- Fond locativ Cladire nouă
- Tipul clădirii Cărămidă
- Starea apartamentului La alb
- Seria Individuală
- Living Apartament cu living
Avantajele
-
Încălzire autonomă
-
Geamuri termopan
-
Geamuri panoramice
-
Ușă blindată
-
Ascensor
-
Teren de joacă
-
Supraveghere video
-
Supermarket
-
Zonă de parc
-
Şcoală
-
Grădiniţă
Descriere
TOATE OFERTELE DISPONIBILE LE GĂSIȚI AICI www.topestate.md
Vă propunem apartament cu suprafața de 109 m.p. situat pe str. Dimineții
Compania de construcții SkyHouse
Darea în exploatare anul 2026
Divizarea imobilului:
- 3 dormitoare
- Bucătărie
- Living
- 2 blocuri sanitare
- 1 balcon
- Antreu
Dotări și avantaje:
- Variantă albă
- Geamuri termopan
- Încălzire autonomă
- Podele calde
- Ușă blindată
- Ascensor
- Teren de joacă
- Curte de tip închisă
În imediată apropiere:
- Magazin
- Farmacie
- Grădiniță
- Școală
Acces facil la transportul public în orice direcție a orașului.
Posibilitate de achitare în rate direct la compania de construcție!
Comision 0% pentru cumpărători!
Compania TOP ESTATE vă ajută în procesul de vânzare- cumpărare a unui imobil, teren sau spațiu comercial, beneficiind de consultanță juridică în domeniul imobiliar și accesarea unui credit ipotecar .

