Informații
- ID 8485
- Suprafață totală, m2 167
- Suprafața terenului 1 ari
- Nivele 3 nivele
- Starea casei La alb
- Fond locativ Cărămidă
- Bloc sanitar 3
- Instalații sanitare Cu instalații sanitare
- Canalizare Сu сanalizare
- Gazeificare Cu gazificare
Avantajele
-
Mobilat
-
Încălzire autonomă
-
Geamuri panoramice
-
Ușă blindată
-
Beci/ subsol
-
Grădină
-
Grădiniţă
-
Şcoală
-
Supermarket
Descriere
TOATE OFERTELE DISPONIBILE LE GĂSIȚI AICI www.topestate.md Spre vânzare townhouse cu suprafața totală de 167 m.p și 1 ar teren aferent situat în Codru str. Costiujeni
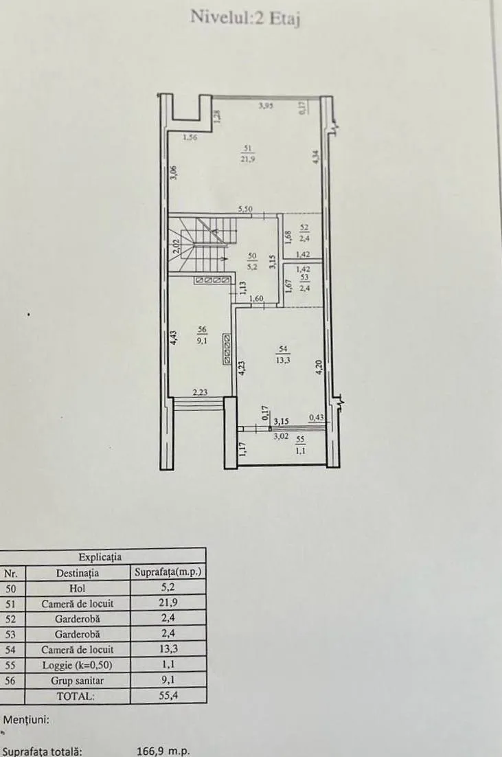
Compartimentare: Parter: living, bucătărie, antreu, terasă. Etaj 1: hol, 2 dormitoare, 2 garderobe, bloc sanitar, loggie. Etaj 2: hol, 2 dormitoare, 2 blocuri sanitare.
Caracteristicile imobilului: ✔ Variantă albă ✔ Geamuri panoramice ✔ Încălzire autonomă ✔ Izolare termică și fonică ✔ Ușă exterioară metalică ✔ Construit din piatră de calcar și cărămidă roșie ✔ Curte de tip închis
Comision 0% pentru cumpărători! Compania TOP ESTATE vă ajută în procesul de vânzare- cumpărare a unui imobil, teren sau spațiu comercial, beneficiind de consultanță juridică în domeniul imobiliar și accesarea unui credit ipotecar.

