Informații
- ID 9774
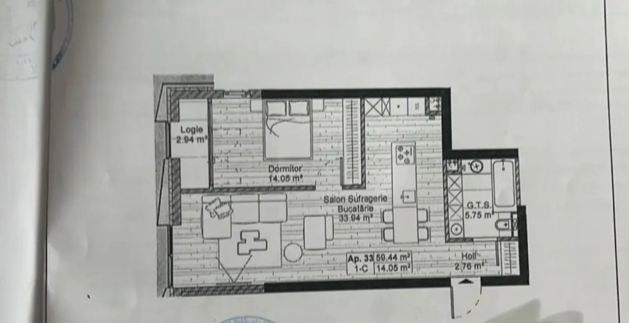
- Suprafață totală, m2 60
- Nivelul 7
- Număr de nivele 24
- Balcon 1 balcon
- Fond locativ Cladire nouă
- Tipul clădirii Design individual
- Starea apartamentului La alb
- Living Apartament cu living
Avantajele
-
Încălzire autonomă
-
Geamuri termopan
-
Ușă blindată
-
Ascensor
-
Teren de joacă
-
Supraveghere video
-
Supermarket
-
Zonă de parc
-
Şcoală
-
Grădiniţă
Descriere
TOATE OFERTELE DISPONIBILE LE GĂSIȚI AICI www.topestate.md
Spre vânzare apartament spațios cu suprafața de 60 m.p. localizat pe str. Spartacus
NIXON RESIDENCE Spartacus, Milanin - companie de constructie
Darea în exploatare trimestru IV, anul 2026
Divizarea imobilului:
- 2 dormitoare,
- Bucătărie,
- Living
- Bloc sanitar
- Balcon
- Antreu
Beneficii:
• Variantă albă
• Geamuri termopan
• Încălzire autonomă
• Izolare termică și fonică
• Ușă blindată
• Ascensor
• Teren de joacă
• Parcare subterană, deschisă
• Curte de tip închis
În imediată apropiere:
✔ Magazin
✔ Restaurant
✔ Farmacie
✔ Grădiniță
✔ Școală
Acces facil la transportul public în orice direcție a orașului.
Comision 0% pentru cumpărători!
Compania TOP ESTATE vă ajută în procesul de vânzare- cumpărare a unui imobil, teren sau spațiu comercial, beneficiind de consultanță juridică în domeniul imobiliar și accesarea unui credit ipotecar.

