Informații
- ID 8407
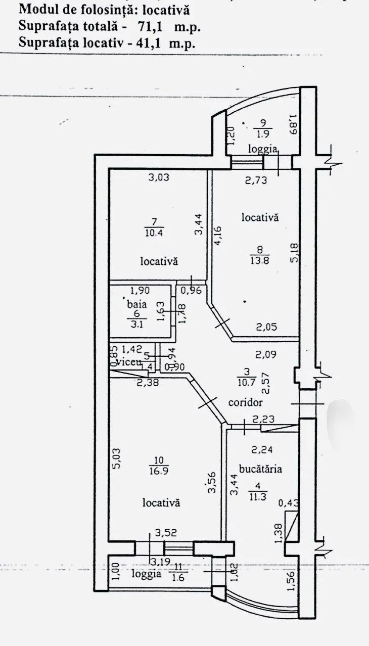
- Suprafață totală, m2 71
- Nivelul 1
- Număr de nivele 5
- Balcon 2 balcoane
- Fond locativ Cladire nouă
- Tipul clădirii Design individual
- Starea apartamentului La alb
- Living Apartament fără living
Avantajele
-
Încălzire autonomă
-
Geamuri termopan
-
Ușă blindată
-
Teren de joacă
-
Supermarket
-
Şcoală
-
Grădiniţă
Descriere
TOATE OFERTELE DISPONIBILE LE GĂSIȚI AICI www.topestate.md
Spre vânzare apartament superb cu suprafața de 71 m.p. amplasat pe str. Constantin Vîrnav
Compartimentare: - 3 dormitoare - Bucătărie - Bloc sanitar separat - 2 balcoane - Antreu
Beneficii: • Variantă albă • Geamuri termopane • Încălzire autonomă • Izolare termică și fonică • Ușă blindată • Teren de joacă • Parcare deschisă • Curte de tip deschisă
În imediată apropiere: ✔ Magazin ✔ Farmacie ✔ Grădiniță ✔ Școală Acces facil la transportul public în orice direcție a orașului. Comision 0% pentru cumpărători! Compania TOP ESTATE vă ajută în procesul de vânzare- cumpărare a unui imobil, teren sau spațiu comercial, beneficiind de consultanță juridică în domeniul imobiliar și accesarea unui credit ipotecar.

