Informații
- ID 11804
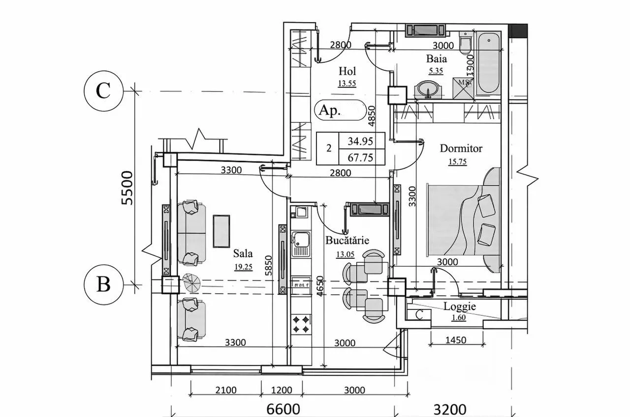
- Suprafață totală, m2 68
- Nivelul 2
- Număr de nivele 10
- Fond locativ Cladire nouă
- Tipul clădirii Combinat
- Starea apartamentului La alb
- Seria Individuală
- Living Apartament cu living
Avantajele
-
Încălzire autonomă
-
Geamuri termopan
-
Geamuri panoramice
-
Ușă blindată
-
Ascensor
-
Teren de joacă
-
Supraveghere video
-
Supermarket
-
Şcoală
-
Grădiniţă
Descriere
TOATE OFERTELE DISPONIBILE LE GĂSIȚI AICI www.topestate.md
Spre vânzare apartament cu suprafața de 68 mp. localizat pe str. Nicolae Testemițanu
Compania de construcții Inamstro
Darea în exploatare anul 2026(tr.3)
Divizarea imobilului:
- 2 dormitoare,
- Bucătărie,
- Living,
- Bloc sanitar,
- Antreu.
Beneficii:
- Variantă albă
- Geamuri panoramice
- Încălzire autonomă
- Izolare termică și fonică
- Ușă blindată
- Ascensor
- Teren de joacă
- Parcare deschisă
- Curte de tip închis
În imediată apropiere:
- Magazin
- Restaurant
- Farmacie
- Grădiniță
- Școală
Acces facil la transportul public în orice direcție a orașului.
Comision 0% pentru cumpărători!
Compania TOP ESTATE vă ajută în procesul de vânzare- cumpărare a unui imobil, teren sau spațiu comercial, beneficiind de consultanță juridică în domeniul imobiliar și accesarea unui credit ipotecar.

