Informații
- ID 11366
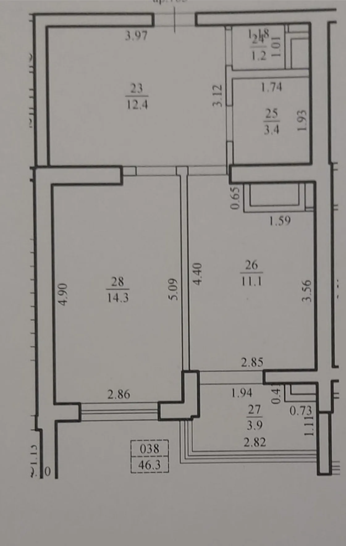
- Suprafață totală, m2 46
- Nivelul 7
- Număr de nivele 12
- Balcon 1 balcon
- Fond locativ Cladire nouă
- Tipul clădirii Design individual
- Starea apartamentului La alb
- Seria Individuală
- Living Apartament cu living
Avantajele
-
Încălzire autonomă
-
Geamuri termopan
-
Pardosea caldă
-
Geamuri panoramice
-
Ascensor
-
Teren de joacă
-
Supraveghere video
-
Supermarket
-
Zonă de parc
-
Şcoală
-
Grădiniţă
Descriere
TOATE OFERTELE DISPONIBILE LE GĂSIȚI AICI www.topestate.md
Spre vânzare apartament cu suprafața de 46 m.p. amplasat pe str. Vasile Lupu Compania de construcție Exfactor
Compartimentare: - 1 dormitor, - living, - bucătărie, - bloc sanitar separat, - balcon, - antreu
Beneficii: - Variantă albă - Geamuri termopan - Încălzire autonomă - Pardosea caldă - Izolare termică și fonică - Ușă blindată - Ascensor - Teren de joacă - Parcare subterană, deschisă - Curte de tip închis
În imediată apropiere: - Magazin - Restaurant - Farmacie - Grădiniță - Școală Acces facil la transportul public în orice direcție a orașului.
Comision 0% pentru cumpărători!
Compania TOP ESTATE vă ajută în procesul de vânzare- cumpărare a unui imobil, teren sau spațiu comercial, beneficiind de consultanță juridică în domeniul imobiliar și accesarea unui credit ipotecar.

