Informații
- ID 10015
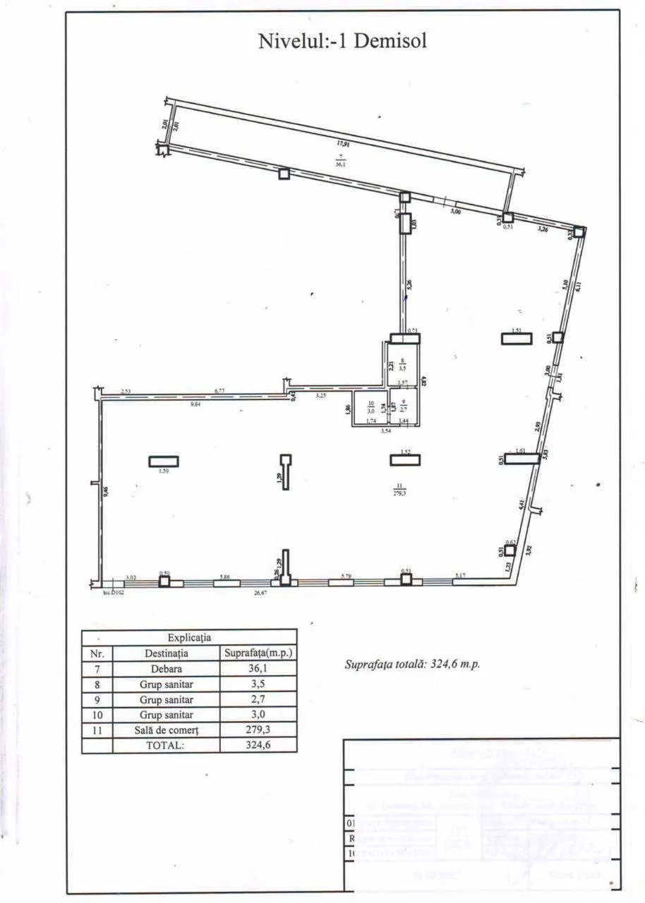
- Suprafață totală, m2 325
- Suprafața terenului - ari
- Tip spațiu Comercial
- Stare încăpere La alb
- Tipul încăperii Comercial
Avantajele
Descriere
TOATE OFERTELE DISPONIBILE LE GĂSIȚI AICI www.topestate.md
Spre vânzare spațiu comercial cu o suprafață de 325 m.p. localizat pe str. Alexandru cel Bun Complexul locativ rezidențial „ Old Town ”!
Beneficiile spațiului: • Varianta albă • Geamuri panoramice • Încălzire autonomă • Parcare de tip deschis • Prima linie Comision 0% pentru cumpărători!
Compania TOP ESTATE vă ajută în procesul de vînzare-cumpărare a unui imobil, teren sau spațiu comercial, beneficiind de consultanță juridică în domeniul imobiliar și accesarea unui credit ipotecar.
