Informații
- ID 9960
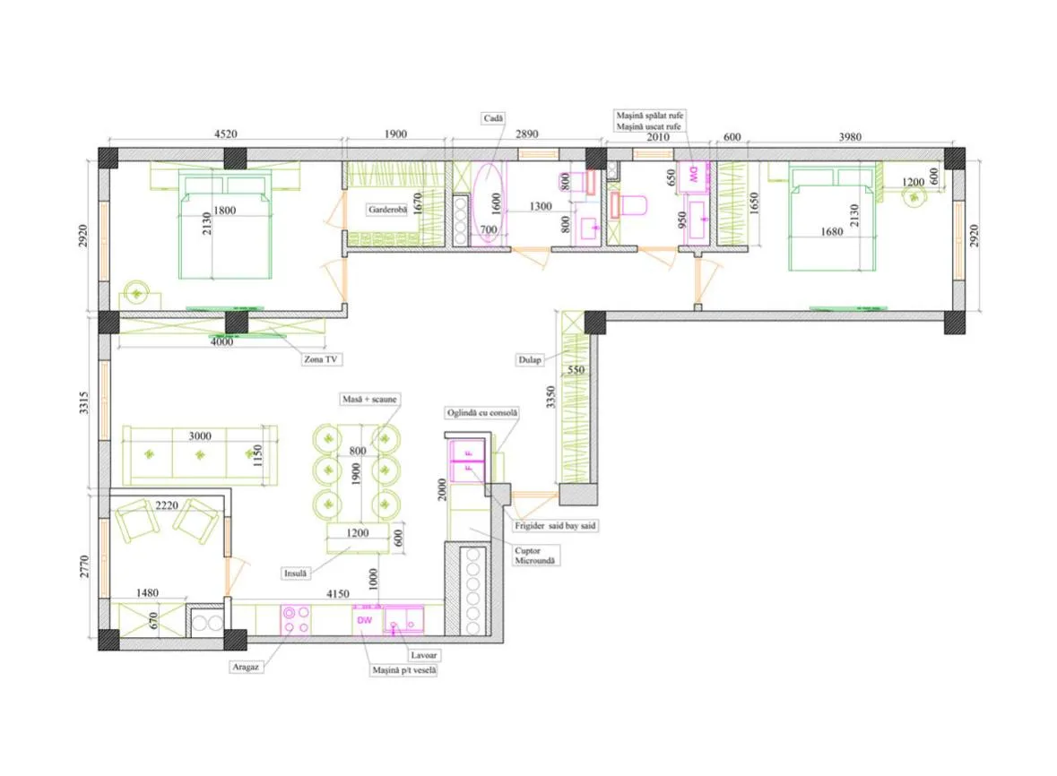
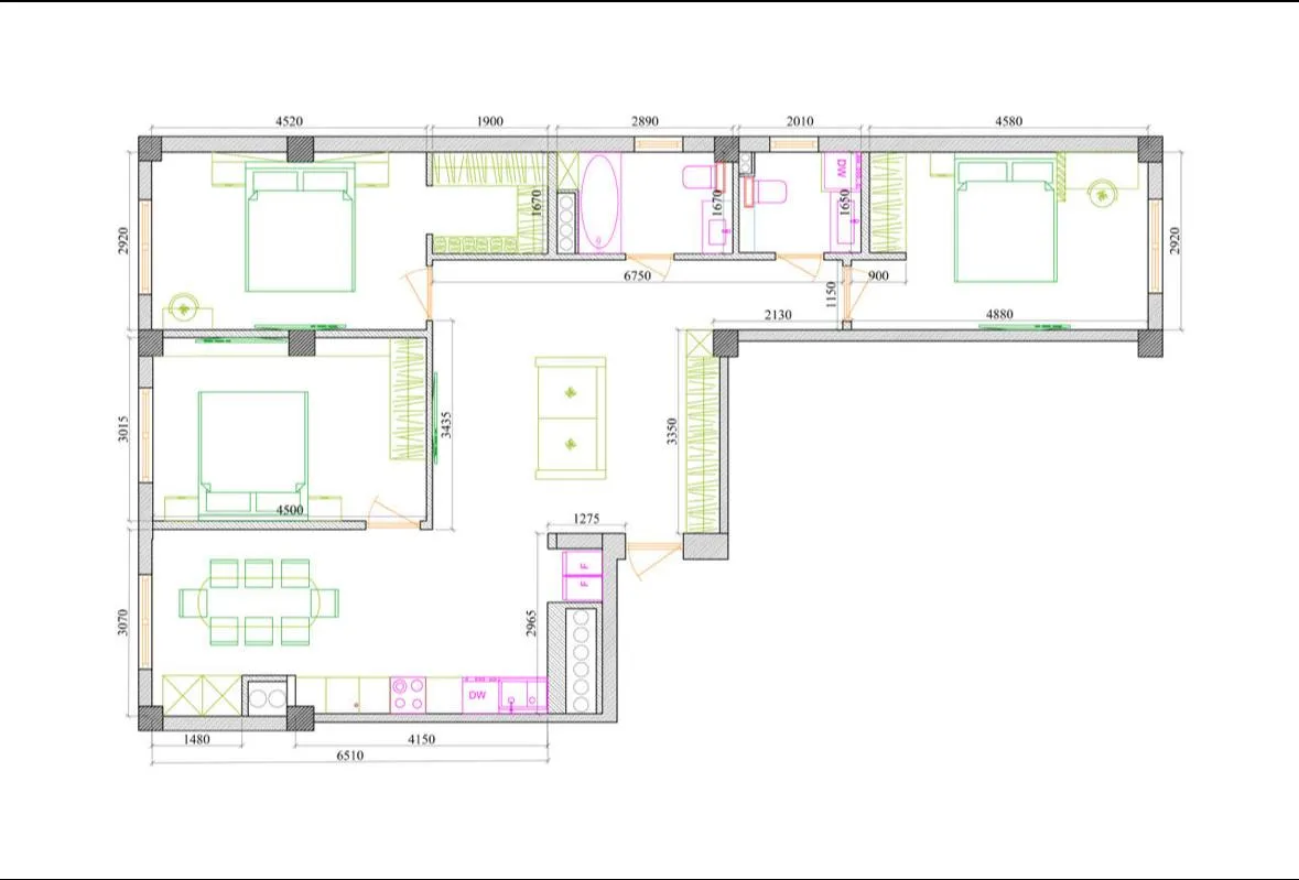
- Suprafață totală, m2 95
- Nivelul 1
- Număr de nivele 7
- Balcon 1 balcon
- Fond locativ Cladire nouă
- Tipul clădirii Beton
- Starea apartamentului La alb
- Seria Individuală
- Living Apartament cu living
Avantajele
Descriere
TOATE OFERTELE DISPONIBILE LE GĂSIȚI AICI www.topestate.md
Spre vânzare un apartament modern de 95 m.p, amplasat pe str. Moara Roșie
Dezvoltator Șahin Contruction
Compartimentare:
- 2 dormitoare
- Bucătărie
- Living
- 2 blocuri sanitare
- Balcon
- Antreu
Beneficii:
- Variantă albă
- Geamuri panoramice
- Încălzire autonomă
- Izolare termică și fonică
- Ușă blindată
- Ascensor
- Teren de joacă
- Parcare subterană, deschisă
- Curte de tip închis
În imediată apropiere:
- Magazin
- Restaurant
- Farmacie
- Grădiniță
- Școală
Acces facil la transportul public în orice direcție a orașului.
Comision 0% pentru cumpărători!
Compania TOP ESTATE vă ajută în procesul de vânzare- cumpărare a unui imobil, teren sau spațiu comercial, beneficiind de consultanță juridică în domeniul imobiliar și accesarea unui credit ipotecar.
