Informații

  • ID 9948
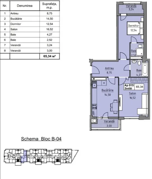
  • Suprafață totală, m2 65
  • Nivelul 2
  • Număr de nivele 9
  • Balcon 1 balcon
  • Fond locativ Cladire nouă
  • Tipul clădirii Beton
  • Starea apartamentului Reparație cosmetică
  • Living Apartament cu living

Avantajele

  • Încălzire autonomă
    Încălzire autonomă
  • Geamuri termopan
    Geamuri termopan
  • Geamuri panoramice
    Geamuri panoramice
  • Ușă blindată
    Ușă blindată
  • Ascensor
    Ascensor
  • Teren de joacă
    Teren de joacă
  • Supraveghere video
    Supraveghere video
  • Supermarket
    Supermarket
  • Şcoală
    Şcoală
  • Grădiniţă
    Grădiniţă

Descriere

TOATE OFERTELE DISPONIBILE LE GĂSIȚI AICI www.topestate.md

Apartament spațios cu suprafața de 65 m.p. localizat pe str. Ceucari.
               Complexul Cartier Cluj - Compania Lagmar

Compartimentare: 
- 2 dormitoare 
- Bucătărie
- Living
- Bloc sanitar separat
- Balcon 
- Antreu

Beneficii:
​• Varianta albă
• Geamuri termopan
​• Încălzire autonomă
• Mobilă, tehnică de uz casnic și sanitar
​• Izolare termică și fonică
​​• Ușă blindată
​• Teren de joacă
​• Parcare deschisă
• Curte de tip deschisă

În imediată apropiere:
✔ Magazin
✔ Farmacie 
✔ Grădiniță
✔ Școală
Acces facil la transportul public în orice direcție a orașului. 

Comision 0% pentru cumpărători!

Compania TOP ESTATE vă ajută în procesul de vânzare- cumpărare a unui imobil, teren sau spațiu comercial, beneficiind de consultanță juridică în domeniul imobiliar și accesarea unui credit ipotecar.