Informații
- ID 9883
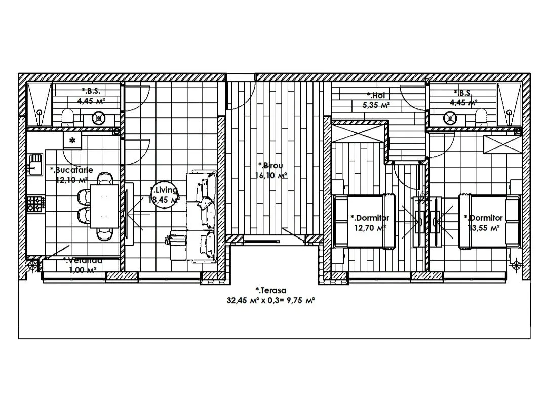
- Suprafață totală, m2 98
- Nivelul 1
- Număr de nivele 4
- Balcon 1 balcon
- Fond locativ Cladire nouă
- Tipul clădirii Cărămidă
- Starea apartamentului La alb
- Living Apartament cu living
Avantajele
Descriere
TOATE OFERTELE DISPONIBILE LE GĂSIȚI AICI www.topestate.md
Spre vânzare apartament spațios cu suprafața de 98 m.p. localizat pe str. Circului
Braus Circului Resedence
Divizarea imobilului:
- 3 dormitoare,
- Bucătărie,
- Living,
- 2 blocuri sanitare,
- Antreu,
- Balcon
- Terasă
Beneficii:
- Variantă albă
- Geamuri panoramice
- Încălzire autonomă
- Pardosea caldă
- Izolare termică și fonică
- Ușă blindată
- Fațade ventilate
- Ascensor
- Teren de joacă
- Parcare subterană, deschisă
- Curte de tip închis
În imediată apropiere:
- Magazin
- Restaurant
- Farmacie
- Grădiniță
- Școală
Acces facil la transportul public în orice direcție a orașului.
Comision 0% pentru cumpărători!
Compania TOP ESTATE vă ajută în procesul de vânzare- cumpărare a unui imobil, teren sau spațiu comercial, beneficiind de consultanță juridică în domeniul imobiliar și accesarea unui credit ipotecar.
