Informații
- ID 9858
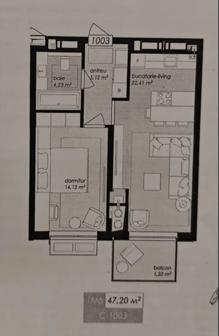
- Suprafață totală, m2 47
- Nivelul 10
- Număr de nivele 16
- Balcon 1 balcon
- Fond locativ Cladire nouă
- Tipul clădirii Design individual
- Starea apartamentului La alb
- Living Apartament cu living
Avantajele
Descriere
TOATE OFERTELE DISPONIBILE LE GĂSIȚI AICI www.topestate.md
Spre vânzare apartament cu suprafața de 47 m.p. amplasat pe bd. Dacia Sampo DMZ Darea în exploatare 2027
Compartimentare: - Dormitor - Bucătărie - Bloc sanitar - Antreu - Balcon - Living
Beneficii: - Varianta albă - Geamuri panoramice - Încălzire autonomă - Izolare termică și fonică - Ușă blindată - Ascensor - Teren de joacă - Parcare subterană, deschisă - Curte de tip închis
În imediată apropiere: - Linella - Farmacie - Grădiniță - Școală Acces facil la transportul public în orice direcție a orașului.
Comision 0% pentru cumpărători!
Compania TOP ESTATE vă ajută în procesul de vânzare- cumpărare a unui imobil, teren sau spațiu comercial, beneficiind de consultanță juridică în domeniul imobiliar și accesarea unui credit ipotecar.
