Informații

  • ID 7354
  • Suprafață totală, m2 44
  • Nivelul 3
  • Număr de nivele 7
  • Balcon 1 balcon
  • Fond locativ Cladire nouă
  • Starea apartamentului La alb
  • Living Apartament cu living

Avantajele

  • Încălzire autonomă
    Încălzire autonomă
  • Geamuri termopan
    Geamuri termopan
  • Geamuri panoramice
    Geamuri panoramice
  • Ușă blindată
    Ușă blindată
  • Ascensor
    Ascensor
  • Teren de joacă
    Teren de joacă
  • Supraveghere video
    Supraveghere video
  • Supermarket
    Supermarket
  • Şcoală
    Şcoală
  • Grădiniţă
    Grădiniţă

Descriere

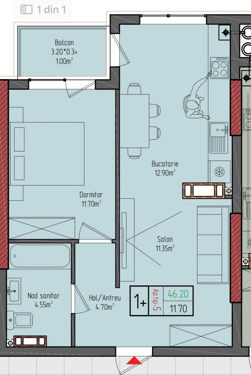
Spre vânzare apartament cu suprafața de 44 m.p. situat pe str. Biruinței.

Compartimentare: 1 dormitor, bucătărie comasată cu living, garderobă, bloc sanitar, antreu, balcon.
                      Compania de construcție „ Conscity”!            

Dotări și avantaje:
​• Variantă albă
​• Geamuri termopan
​• Încălzire autonomă
​​• Ușă blindată
​• Ascensor
• Teren de joacă
​• Parcare deschisă
• Curte de tip închis
 

În imediată apropiere:
✔ Linellla
✔ Farmacie 
✔ Grădiniță
✔ Școală
Acces facil la transportul public în orice direcție a orașului. 

Comision 0% pentru cumpărători!

Compania TOP ESTATE vă ajută în procesul de vânzare- cumpărare a unui imobil, teren sau spațiu comercial, beneficiind de consultanță juridică în domeniul imobiliar și accesarea unui credit ipotecar.
 

TOATE OFERTELE DISPONIBILE LE GĂSIȚI AICI www.topestate.md