Informații
- ID 10017
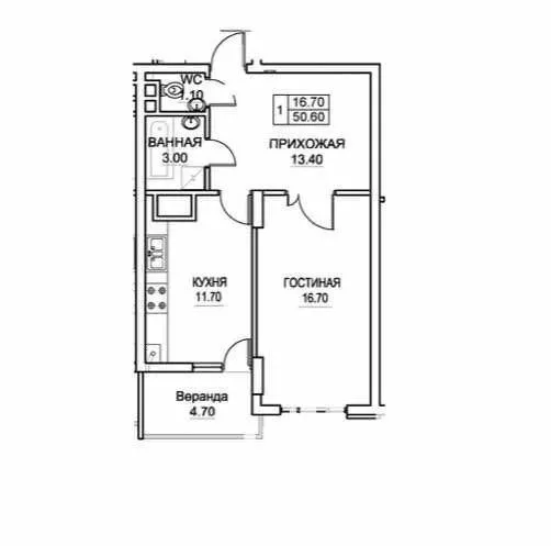
- Suprafață totală, m2 51
- Nivelul 2
- Număr de nivele 10
- Balcon 1 balcon
- Fond locativ Cladire nouă
- Tipul clădirii Design individual
- Starea apartamentului La alb
- Living Apartament cu living
Avantajele
Descriere
TOATE OFERTELE DISPONIBILE LE GĂSIȚI AICI www.topestate.md
Spre vânzare apartament cu suprafața de 51 m.p. amplasat pe str. Ion Buzdugan
Compania de construcție Exfactor
Compartimentare:
- 1 dormitor
- Bucătărie
- Living
- Bloc sanitar separat
- Antreu
- Balcon
Beneficii:
- Varianta albă
- Geamuri termopan
- Încălzire autonomă
- Izolare termică și fonică
- Ușă blindată
- Ascensor
- Teren de joacă
- Parcare subterană, deschisă
- Curte de tip închis
În imediată apropiere:
- Linella
- Farmacie
- Grădiniță
- Școală
Acces facil la transportul public în orice direcție a orașului.
Comision 0% pentru cumpărători!
Compania TOP ESTATE vă ajută în procesul de vânzare- cumpărare a unui imobil, teren sau spațiu comercial, beneficiind de consultanță juridică în domeniul imobiliar și accesarea unui credit ipotecar.
